众所周知,铸铁闸门常常被用于河渠、沟渠、渠道等渠系水利工程,也被用圩口涵闸、排灌泵站的小型闸门,孔口尺寸较小的水库涵洞闸门等,那铸铁闸门的装配和安装有哪些要求呢?在此瑞鑫水工做了以下梳理。

5、铸铁闸门全闭位置时,安装楔块,闸门全闭时,门板与门框的各楔紧面应同时相互楔紧;
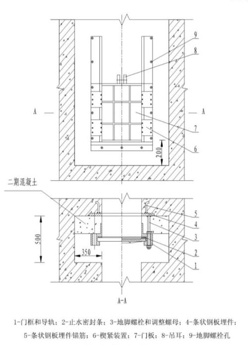
6、闸门止水密封条应连接牢固。门板止水密封条下边缘应高于门框止水密封条下边缘,其高差应不大于2.0mm;
7、闸门全闭、平放、无外加荷载条件下,止水密封条间隙应不大于0.1mm;

铸铁闸门安装通常会采用二期混凝土的方式,在一期混凝土中设置闸门安装槽口,并在混凝土中埋设条状钢板(也被称为铸铁闸门预埋件),条状钢板锚筋应与一期混凝土中的钢筋连接牢固,其埋设位置应与门框和导轨安装位置相对应,且与导轨等高。同时槽口尺寸应满足闸门安装调整和二期混凝土浇筑的需要。 铸铁闸门地脚螺栓应与条状钢板埋件焊接牢固,二期混凝土应采用膨胀混凝土,浇筑前应对结合面凿毛处理。

1、铸铁闸门安装前应检查闸门的规格型号、尺寸等,检查结果应符合设计要求,同时闸门外观完好,无裂纹、缺角和掉边等问题。
2、安装过程中铸铁闸门应全闭,楔紧副应楔紧,防止异物进去密封面导致后期试运行出现漏水现象;
5、闸门的吊点和启闭机的轴线、在闸板无下压力的状态下,用临时连接螺栓保持门板和门框楔紧。临时连接螺栓应在混凝土凝固后拆除。

2、 闸门与启闭机联合空载试运行时,应操作灵活,无卡阻、突跳及异常声响;
5、闸门在承受正向工作水头压力时,止水密封面渗漏量应不大于1.25L/min·m。承受反向工作水头压力时,止水密封面渗漏量应不大于25L/min·m。
以上就是关于铸铁闸门装配、安装方式、安装要求、试运行的内容了,关注我们带您了解更多铸铁闸门知识,助您选购好闸门。
双吊点螺杆启闭机铸铁闸门的应急备用切换调试|**保障水利工程安全运行
QLSD2-60T螺杆启闭机**稳定,守护水利命脉的“钢铁卫士”
球墨铸铁闸门的平推结构受力测试:新标 GB/T 标准参数解读 + 检测方法
0319-4752228