整体平面铸铁闸门尺寸规格参数是相对于组合式铸铁闸门来说的,而且通常情况下尺寸规格比较小,闸门框、闸板、导轨通常采用整体铸造的方式,同时在安装时通常采用整体安装,多用于渠道、河道、水库等,比如用于农田灌溉、水产养殖等水压比较小,闸门费用通常也比较低,在用于水库、河道等水压比较的情况下,闸门重量比较大,费用相对比较高。在此,宝铭水利小刘总结如下:


2、从上表中不难看出整体平面铸铁闸门的尺寸多数在1米以下,尺寸比较小,因此多用于孔口尺寸比较小的水利工程;
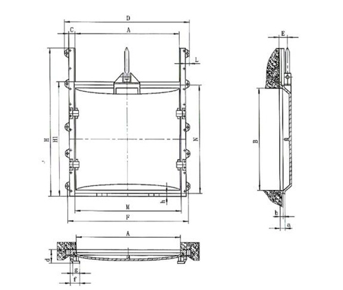
4、从上表和结构图对照可知:表中的A代表闸门的宽度,B表示闸门的厚度,C、H代表闸框的尺寸。


以上就是关于整体平面铸铁闸门尺寸规格参数的内容了,其中包含了闸门的外形尺寸、安装尺寸、结构图及闸门组件材质及实物图等内容,关注我们了解更多铸铁闸门启闭机知识
0319-4752228