中的一种,材质通常为304不锈钢,型号通常表示为PZM,报价通常在260-3800元一套或更多,具有重量轻,不生锈,操作方便,也常常被称为手提式闸门或机门一体闸。

PZM机闸一体不锈钢闸门是一种采用不锈钢材质制作的,采用软橡胶密封的,被广泛应用于给排水水利工程上,用于截断渠道内的水流,工作介质通常为常温下的清水或污水。


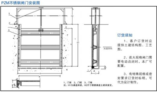
机闸一体不锈钢闸门主要由门框、门板、门架、导轨、启闭机等部件组成,其中门框与门体安装在水下部位,导轨则装在门框上端,门体工作时,沿门框导轨在一定行程内作上、下垂直方向往复运动,从而实现调节水流的作用。

广泛应用于自来水厂、污水厂、排灌、排涝、石油、化工、冶金、环保、电力、塘堰、河流等工程,作为截止、调节流量和控制水位之用,因为其重量较轻,因此主要适用于灌区中口径较小的工况。
0319-4752228